A: Introduction / Créer un document.
Respect de la marche à suivre pour la création et la sauvegarde d’un document. Utilisation des fonctions appropriées pour la mise en page. Utilisation des fonctions appropriées pour préciser l’unité de travail. Adaptation pertinente des barres d’outils.
Description détaillée de la formation
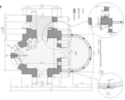
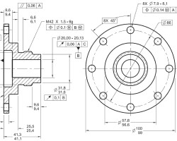
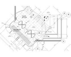
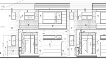
autocad - Plan de cours autocad 2D
L'ENVIRONNEMENT D'AUTOCAD - MÉTHODES DE
TRAVAIL - LES MENUS DÉROULANTS LES ICÔNES
D’AUTOCAD - RACCOURCIS CLAVIER - BOUTONS DE
FERMETURE D’AUTOCAD - QUIT - CLOSE - CLOSEALL
- LES BARRES DE DÉFILEMENT - UTILISATION DE LA
SOURIS - MÉTHODES DE SÉLECTION DANS AUTOCAD -
NEW - QNEW - DÉPART D’UN NOUVEAU DESSIN
ENREGISTREZ LE - SAVE - QSAVE - ÉTABLIR UNE
SAUVEGARDE AUTOMATIQUE - SAVETIME - OUVRIR UN
FICHIER - OPEN - DÉTERMINEZ LES UNITÉS
DE TRAVAIL - UNITS - PRÉPARATION DE L’ESPACE
DE DESSIN - MVSETUP - LES GABARITS DE DÉPART -
LES TOUCHES F.






